Skip to content

Van Boshuizenstraat 611

1082 AW, Amsterdam

Van Boshuizenstraat 611

1082 AW, Amsterdam

  • 68
  • 1
  • Gemeubileerd
  • Verhuurd

Omschrijving

**PLEASE RESPOND VIA THE ADVERTISEMENT AND SCHEDULE YOUR APPOINTMENT DIRECTLY**

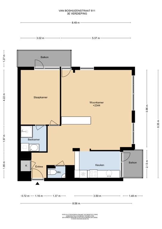
This wonderful bright corner apartment, with a living area of approx 68 m2 is located in the popular Buitenveldert area. The apartment is part of the well-maintained apartment complex “Jacob van Campen” with a secured entrance, staircase and elevator. This lovely furnished apartment is situated on the third floor and has a spacious south-facing balcony and a second west-facing balcony.

Layout:
Communal entrance with intercom, mailboxes and access to the central hall, lift or stairs to the third floor.
Private entrance with built in wardrobe you enter the open hall with separate toile, spacious bright living room located on the corner with access to the south-facing balcony, open kitchen equipped with; fridge, freezer, oven and gas stove (no dishwasher), bedroom with bed and spacious wardrobe also with access to the south-facing balcony, ensuite bathroom with sink, shower and washing machine.

Area:
Very good location; for daily shopping you can, within walking distance, go to the recently renovated shopping strip “Rooswijck” on Buitenveldertselaan or the shops in the nearby Kastelenstraat. The shopping center “Groot Gelderlandplein”, located 5 minutes by bike, has excellent shops and restaurants and is open 7 days a week.
For recreation you can go to the Amstelpark, the Amsterdamse Bos or Groengebied Amstelland near the Amstel. Easily accessible by public transport and private transport.

DETAILS:
– 1 bedroom
– Furnished
– Living area of approx 68 m2, (not NEN 2580 measured)
– 2 balconies
– Lift
– Double glazing resulting in an energy label A.
– Carpet floors (very decent and clean)
– Corner apartment
– Great area
– Zuid as area also close to Groot Gelderlandplein
– Parking possible via Municipality (check waiting list)

RENTAL CONDITIONS:
– Rental price € 1.850 ,- excl per month
– Prepaid amount for blockheating on top € 140,- per month
– Available directly for at least 12 months ( lease A)
– 2 months deposit
– No Pets
– Not available for sharing
– Subject to landlord approval
– Income requirement: at least 3 times the gross monthly rent

**This Property is listed by JLG Real Estate a MVA Certified Expat Broker**

DISCLAIMER
This information has been compiled by us with the necessary care. On our part, however, no liability is accepted for any incompleteness, inaccuracy or otherwise, or its consequences. All sizes and dimensions are indicative.

Kenmerken

Algemeen

  • StatusVerhuurd
  • Woonoppervlakte68
  • Aantal slaapkamers1

Bouwvorm

  • Soort objectAppartement
  • Soort appartementBovenwoning
  • Bouwjaar1962
  • BouwvormBestaande bouw
  • LiggingenAan rustige weg, In woonwijk

Indeling

  • Woonoppervlakte68
  • Inhoud188
  • Aantal kamers2
  • Aantal slaapkamers1
  • Aantal badkamers1
  • Aantal woonlagen1

Energie

  • EnergieklasseA
  • VerwarmingBlokverwarming
  • WarmwaterGeiser eigendom
  • IsolatieMuurisolatie, Dubbelglas

Buitenruimte

  • TuinGeen tuin
  • AchteromNee

Parkeergelegenheid

  • Parkeer faciliteitenOpenbaar parkeren, Betaald parkeren
  • GarageGeen garage

Dak

  • Soort dakPlat dak
  • Materiaal dakBitumineuze Dakbedekking

Overig

  • Permanente bewoningJa
  • Onderhoud binnenGoed
  • Onderhoud buitenGoed
  • Huidig gebruikWoonruimte
  • Huidige bestemmingWoonruimte

Plattegrond

Plattegrond

Op de kaart

Vergelijkbare woningen