Skip to content

Anjeliersstraat 82B

1015 NJ, Amsterdam

Anjeliersstraat 82B

1015 NJ, Amsterdam

  • 56
  • 1
  • Gedeeltelijk gestoffeerd en gemeubileerd
  • Verkocht

Omschrijving

(For English just scroll down)
Wonen in het hart van de Jordaan – Anjeliersstraat 82 B

Welkom in dit bijzondere appartement in een van de meest geliefde buurten van Amsterdam: de Jordaan. Midden tussen de pittoreske straatjes, sfeervolle cafés, toprestaurants, boutiques en op een steenworp afstand van de Noordermarkt en de grachtengordel, bevindt zich dit uitzonderlijk lichte en modern uitgevoerde appartement van ca. 56 m². Een unieke kans om te wonen op een karaktervolle plek waar historie, creativiteit en comfort samenkomen.

Architectonisch pareltje uit 2011

Het gebouw waarin dit appartement zich bevindt, werd in 2011 onder architectuur van Dana Ponec gerealiseerd. De opvallende voorgevel, geïnspireerd op een gestileerd draaiorgel, vormt een speelse verwijzing naar het oorspronkelijke gebruik van de locatie: een opslag voor draaiorgels. De moderne gevel wordt verrijkt met drie markante beelden die deze geschiedenis extra kracht bijzetten.

Bij binnenkomst valt direct de ruime en verzorgde gemeenschappelijke entree op, afgewerkt met warme natuurhouten elementen. Het gebouw beschikt over een open trappenhuis, een lift, een hydrofoor en een gemeenschappelijke fietsenstalling – comfort en gemak zijn hier vanzelfsprekend.

Een zee van licht – 11 meter voorgevelbreedte

Het appartement zelf ligt op de eerste verdieping en biedt dankzij de uitzonderlijk brede voorgevel (maar liefst 11 meter!) een overvloed aan daglicht. De grote raampartijen met openslaande deuren en Franse balkons creëren een gevoel van ruimte en vrijheid dat meteen uitnodigt tot ontspannen wonen.

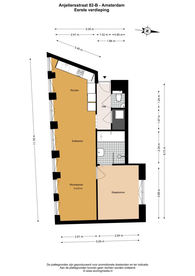
De praktische en doordachte indeling bestaat uit een luxe open woonkeuken met hardstenen werkblad en volledig geïntegreerde inbouwapparatuur. Verder vind je een apart toilet, een handige berging/wasruimte en een separate slaapkamer aan de rustige achterzijde. Ook hier openslaande deuren met Frans balkon. Aansluitend bevindt zich de moderne badkamer met inloopdouche, stijlvol wasmeubel en heerlijk ligbad.
De woonkamer is groot genoeg om op te splitsen en een tweede slaapkamer te creëren.

Pluspunt: gelegen op eigen grond, dus geen erfpacht!

De Jordaan – wonen in een ansichtkaart

De Anjeliersstraat ligt in het meest gewilde deel van de Jordaan. Hier loop je door charmante straatjes waar ambachtelijke winkels, creatieve ondernemers en authentieke Amsterdamse sfeer elkaar versterken. De levendige Noordermarkt, de Bloemgracht en talloze cafés en restaurants liggen letterlijk om de hoek. Elke dag voelt hier als een wandeling door een levende ansichtkaart.

De details:

• Ca. 56,2 m2 woonoppervlak, gemeten conform Meetinstructie NEN2580
• Mogelijkheid om een tweede slaapkamer te creëren
• Eigen grond
• Gelijkvloers met lift en gemeenschappelijke fietsenberging
• Volledig geïsoleerd, energielabel A
• CV combiketel uit 2011
• VVE bestaande uit 7 leden, professioneel beheerd door Delair. MJOP aanwezig
• Servicekosten 213,24 euro per maand
• Diverse inventaris zoals bank, eettafel met stoelen, bed, wasmachine- en droger ter overname
• Niet- bewonersclausule van toepassing
• Oplevering kan snel

***

Living in the heart of the Jordaan – Anjeliersstraat 82 B

Welcome to this unique apartment in one of Amsterdam’s most beloved neighborhoods: the Jordaan. Nestled amidst picturesque streets, charming cafés, top restaurants, and boutiques, and just a stone’s throw from the Noordermarkt and the canal district, lies this exceptionally bright and modern apartment of approximately 56 m². A unique opportunity to live in a characterful location where history, creativity, and comfort converge.

An architectural gem from 2011

The building in which this apartment is located was built in 2011 by architect Dana Ponec. The striking facade, inspired by a stylized barrel organ, playfully references the location’s original purpose: a barrel organ storage facility. The modern facade is enhanced with three striking statues that further enhance this history.
Upon entering, the spacious and well-maintained communal entrance, finished with warm natural wood elements, immediately catches the eye. The building features an open staircase, an elevator, a hydrophore system, and a communal bicycle shed – comfort and convenience are a given fact here.

A sea of light – 11-meter frontage

The apartment itself is located on the first floor and offers an abundance of natural light thanks to its exceptionally wide frontage (a whopping 11 meters!). The large windows with French doors and French balconies create a sense of space and freedom that immediately invites you to relax.

The practical and well-thought-out layout consists of a luxurious open-plan kitchen with a hardstone countertop and fully integrated appliances. You’ll also find a separate toilet, a convenient storage/laundry room, and a separate bedroom at the quiet rear. Here, too, French doors open onto a French balcony. Adjacent is the modern bathroom with a walk-in shower, stylish vanity, and a wonderful bathtub.
The living room is big enough to split up and create a second bedroom.

Big advantage: located on freehold land, so no leasehold!

The Jordaan – living in a postcard

Anjeliersstraat is located in the most desirable part of the Jordaan. Here you’ll stroll through charming streets where artisan shops, creative entrepreneurs, and the authentic Amsterdam atmosphere complement each other. The lively Noordermarkt, the Bloemgracht canal, and countless cafés and restaurants are literally around the corner. Every day feels like a walk through a living postcard.

Details:

• Approx. 56,2 m² living space, measured in accordance with NEN2580 Measurement Instructions
• Freehold land
• possibility to create a second bedroom
• 1 floor with elevator and shared bicycle storage
• Fully insulated, energy label A
• Central heating combi boiler from 2011
• Homeowners’ Association (VVE) consisting of 7 members, professionally managed by Delair. Long-term maintenance plan (MJOP) available
• Service charges € 213,24 per month
• Various inventory items such as a sofa, dining table with chairs, bed, washer and dryer are available for takeover
• Non-resident clause applies
• Quick delivery possible

Kenmerken

Algemeen

  • StatusVerkocht
  • Woonoppervlakte56
  • Aantal slaapkamers1

Bouwvorm

  • Soort objectAppartement
  • Soort appartementBovenwoning
  • BouwvormBestaande bouw
  • LiggingenIn centrum

Indeling

  • Woonoppervlakte56
  • Inhoud189
  • Aantal kamers2
  • Aantal slaapkamers1
  • Aantal badkamers1
  • Aantal woonlagen1

Energie

  • EnergieklasseA
  • VerwarmingCV ketel
  • C.V.-KetelHr
  • Bouwjaar C.V.-Ketel2011
  • WarmwaterCV ketel
  • IsolatieVolledig geïsoleerd
  • CombiketelJa
  • BrandstofGas
  • EigendomEigendom

Buitenruimte

  • TuinGeen tuin
  • AchteromNee

Parkeergelegenheid

  • Parkeer faciliteitenOpenbaar parkeren, Betaald parkeren, Parkeervergunningen
  • GarageGeen garage

Overig

  • Permanente bewoningJa
  • Onderhoud binnenUitstekend
  • Onderhoud buitenUitstekend
  • Huidig gebruikWoonruimte
  • Huidige bestemmingWoonruimte

Plattegronden

Plattegrond
Plattegrond 2
Plattegrond 3
Plattegrond 4

Op de kaart

De brochure

Alles te weten komen over deze woning? Download dan de gedetailleerde brochure.

Wonen in het centrum van Amsterdam

Heel de wereld is rond Amsterdam gebouwd! Dit dichtte Joost van den Vondel in de zeventiende eeuw. Deze eeuw , beter bekend als de Gouden Eeuw, was voor Amsterdam inderdaad een ongekende periode van welvaart en voorspoed. Duizenden mensen uit heel Europa kwamen naar Amsterdam om handel te drijven of om een nieuw bestaan op te bouwen.

Anjeliersstraat 82B

1015 NJ, Amsterdam

Verkocht

Vergelijkbare woningen