- 66
- 3
- Available
Description
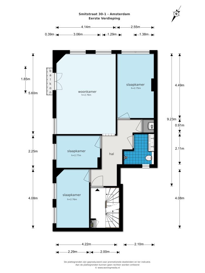
In the beloved and vibrant Amsterdam East, nestled between Oosterpark and Park Frankendael, you’ll find this charming and well-laid-out corner apartment of approximately 65.5m² (NEN measured), featuring three bedrooms, energy label B, and beautiful high ceilings. Thanks to the large windows, the property enjoys optimal natural light.
An ideal home for first-time buyers, young families, or flat sharers looking for comfort, outdoor city life, and an excellent location in a pleasant residential environment.
Practical layout
Through the communal entrance, you reach the first floor where the apartment is located. The apartment features an open kitchen with built-in appliances, a living room, three bedrooms, a separate laundry room, and a modern bathroom. The bathroom includes a shower, toilet, double sink, and vanity unit. The entire apartment has oak engineered parquet flooring.
Authentic location
The property is located on the quiet Smitstraat, a side street in the heart of the Oosterpark neighborhood. In the immediate vicinity, you’ll find the lively Dappermarkt, Oostpoort shopping center, Oosterpark and Park Frankendael, Artis Zoo, the Tropenmuseum, and numerous restaurants and cafés along Linnaeusstraat such as Louie Louie, Café Kuijper, De Biertuin, and The Cottage. The location offers the vibrancy of city life along with a peaceful living environment.
Additionally, the home is very accessible by both bicycle and public transport. Tram and bus stops are around the corner, and both Muiderpoort Station and Amstel Station are just a short distance away.
Details
• Living area of 65.5m² (NEN 2580 measurement report available)
• Beautiful corner location, French balcony, high ceilings, large windows
• 4 rooms, including 3 bedrooms
• Freehold property (no leasehold)
• Double glazing and good insulation: Energy label B
• Located in the popular Amsterdam East
• Professionally managed VvE (homeowners' association), recently established
• The property is sold ‘as is where is’ by a professional party using an NVM purchase agreement
• Subject to KYC (Know Your Customer) and final subdivision permit
• Quick delivery possible
**The photos and floorplan in this advertisement are of Smitstraat 30-1, as these homes are identical to each other.
Features
General
- StatusAvailable
- Living area66
- Number of bedrooms3
Construction
- Kind of objectApartment
- Kind of appartmentUpstairs apartment
- ConstructionResale
- Position On a quiet road, In residential area
Layout
- Living area66
- Volume224
- Number of rooms4
- Number of bedrooms3
- Number of bathrooms1
- Number of floors1
Energy
- Energy labelB
- HeatingCH boiler
- Year CH boiler2015
- Hot waterCH boiler
- InsulationCompletely isolated, HR glass
- CH combination boilerJa
- FuelGas
- OwnershipOwnership
Exterior space
- GardenNo garden
- AchteromNee
Parking
- Parking facilitiesPublic parking, Paid parking, Parking permits
- GarageNo garage
Roof
- Type of roofFlat roof
- Roof materialBituminous roofing
Other
- Permanent habitationJa
- Indoor maintenanceGood
- Maintenance outsideGood
- Current useLiving area
- Current destinationLiving area
On the map
Smitstraat 30-3
1092 XS, Amsterdam
€ 565.000,- k.k.
Similar properties
Smitstraat 30-1
1092 XS, Amsterdam
€ 565.000,- k.k.
Smitstraat 30-4
1092 XS, Amsterdam
€ 565.000,- k.k.