Skip to content

Rustenburgerstraat 229-3

1073 GA, Amsterdam

Rustenburgerstraat 229-3

1073 GA, Amsterdam

  • 104
  • 2
  • Available

Description

- PLEASE FILL IN THE VIEWING REQUEST FORM TO PLAN A VIEWING, CALLS WIL NOT BE SCHEDULED -

Beautiful, bright 2 floor apartment in the popular Pijp area with a spacious living room with a lovely open kitchen and south-facing balcony. Two very spacious bedrooms and two bathrooms.

Layout:
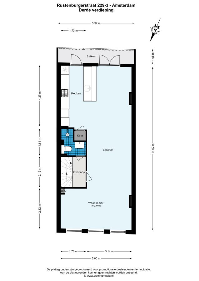
The stairwell takes you to the entrance on the second floor. On the third floor, you have access to the spacious and open living area, which features three large windows at the front. At the rear, there's French doors leading to a sunny south-facing balcony from the modern open-plan kitchen, which is stylishly finished and equipped with an island and high-quality appliances, including a gas stove, induction cooktop, oven, refrigerator, freezer, and dishwasher.
On the landing with glass doors, you'll find the first bathroom, complete with sink, walk-in shower, and toilet.

The beautiful open staircase in the middle of the floor leads to the upper floor, where the bedrooms and the second bathroom are located. At the front, there is the first charming bedroom or study with beautiful skylights, equipped with remote-controlled shutters. At the rear of the house is the master bedroom, very spacious, and this room is also equipped with skylights with remote-controlled shutters, with plenty of space for large wardrobes. This upper floor has a lot of character due to the robust roof beams and height.
The second bathroom features a walk-in shower, a bathtub, a toilet, and a washbasin unit.
On the landing, there is also an additional storage room with connections for a washing machine and dryer.

Location:
The apartment is located in the lively and dynamic district of De Pijp, one of Amsterdam's most beloved neighborhoods.
In addition to the culinary and cultural offerings, De Pijp is well connected to the rest of Amsterdam. With easy access to public transportation, including trams and the North-South subway, you can easily explore other parts of the city.

Details:
- Living area: 104 m² (measured according to NEN2580)
- 2 Bedrooms
- 2 bathrooms
- South-facing balcony
- Energy label C
- Modern open kitchen with an island
- Wooden floors
- No pets, no smoking
- GREAT location on a quiet street in the heart of the popular Pijp area

Rental conditions:
- Available directly for a minimum of 12 months (lease A)
- Rental price 2.900 EU excl. utilities
- 2 months deposit
- Not suitable to share
- Subject to landlord approval
- Income requirement: at least 3 times the gross monthly rent
- Parking by Municipality permit system

**This Property is listed by JLG Real Estate a MVA Certified Expat Broker**

DISCLAIMER
This information has been compiled by us with the necessary care. On our part, however, no liability is accepted for any incompleteness, inaccuracy or otherwise, or its consequences. All sizes and dimensions are indicative.

Features

General

  • StatusAvailable
  • Living area104
  • Number of bedrooms2

Construction

  • Kind of objectApartment
  • Kind of appartmentUpstairs apartment
  • construction year1896
  • ConstructionResale
  • Position On a quiet road, In residential area

Layout

  • Living area104
  • Volume404
  • Number of rooms3
  • Number of bedrooms2
  • Number of bathrooms2
  • Number of floors2

Energy

  • Energy labelC
  • Hot waterCH boiler
  • InsulationDouble glazing
  • CH combination boilerNee

Exterior space

  • GardenNo garden
  • AchteromNee

Parking

  • Parking facilitiesPublic parking, Paid parking
  • GarageNo garage

Other

  • Permanent habitationJa
  • Indoor maintenanceGood
  • Maintenance outsideGood
  • Current useLiving area
  • Current destinationLiving area

Floor plans

On the map

The brochure

Want to know everything about this property? Download the brochure.

Rustenburgerstraat 229-3

1073 GA, Amsterdam

€ 2.900,- p/m

Send a proposal Plan a viewing Maak afspraak via WhatsApp