Skip to content

Oude-IJselstraat 18-1

1078 CN, Amsterdam

Oude-IJselstraat 18-1

1078 CN, Amsterdam

  • 62
  • 2
  • Gestoffeerd
  • Under offer

Description

**VIEWINGS FULLY BOOKED**

Oude-IJselstraat 18 I

Charming 1st floor apartment in green area with open view over the beautiful square. This unfurnished 2 bedroom apartment comes with upholstering like laminate flooring, double glazing, curtains, light fixtures, modern kitchen, modern bathroom and lots of built in storage space. Perfect for sharing with 2 very good sized bedrooms!

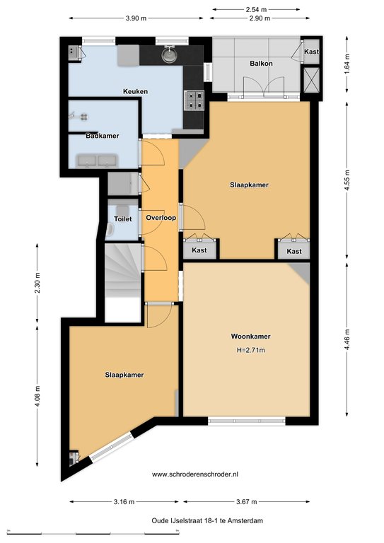
LAY OUT:
Private entrance, stairs to first floor, hallway with access to all areas, separate toilet, laundry area with connection for washer/dryer, bright living space at the front with beautiful view over the square, modern corner kitchen at the back with fridge, dishwasher, combi oven and gas stove and space for a small(breakfast) table, bathroom with separate shower and double sink, spacious bedroom at the rear with lots of built in cupboard space and attached a balcony with morning sun, second spacious bedroom at the front

AREA:
The Oude-IJsselstraat is a quiet but pleasant street in the popular Rivierenbuurt. In the immediate vicinity you will find many nice restaurants and shops. For example, go to Vis aan de Schelde, Orbit, Loulou Pizzabar or Café Vrijdag for a delicious dinner. You can get the best ice cream at Venitië ice cream shop. You can get your daily groceries at the Albert Heijn. Sports enthusiasts can indulge themselves at TrainMore, Basic Fit and Fit for Free. The Beatrixpark and Amstelpark are suitable for a nice walk. The house is also very close to the Pijp, with many nice terraces, cafes and of course the Albert Cuyp market. Within 10-15 minutes you can reach the city center of Amsterdam by bike or the North-South line. The many schools and parks in the vicinity make this a very suitable neighborhood for families. In short; a diverse neighborhood where you will never be bored.

The apartment is easily accessible by public transport. The tram/bus stop, the North-South line, RAI station, South/WTC station and Amstel station are all close by. You can reach Schiphol Airport within 20 minutes. The apartment is also easily accessible by car, the A10 (S109/S110) and A2 ring road can be reached within a few minutes.

DETAILS:
- Rental price € 2.320,- excl utilities per month (incl € 60 service costs)
- Directly available for a minimum of 12 months
- Size about 62 m2 (not measured according NEN2580 guidelines)
- 2 bedrooms
- Unfurnished
- Energy rating A
- Quiet area, surrounded by green
- Beautiful green view
- Laminate flooring
- Balcony with morning sun
- No smoking, no pets
- 2 months deposit
- Sharing possible for 2 working professionals
- Parking by Municipality permit system
- Subject to landlord approval
- Income requirement: at least 3.7 times the gross monthly rent

**This Property is listed by JLG Real Estate a MVA Certified Expat Broker**

DISCLAIMER
This information has been compiled by us with the necessary care. On our part, however, no liability is accepted for any incompleteness, inaccuracy or otherwise, or its consequences. All sizes and dimensions are indicative

Features

General

  • StatusUnder offer
  • Living area62
  • Number of bedrooms2

Construction

  • Kind of objectApartment
  • Kind of appartmentUpstairs apartment
  • ConstructionResale
  • Position At a park, On a quiet road, In residential area, Unobstructed view, Sheltered location

Layout

  • Living area62
  • Volume160
  • Number of rooms3
  • Number of bedrooms2
  • Number of bathrooms1
  • Number of floors1

Energy

  • Energy labelA
  • HeatingCH boiler
  • Hot waterCH boiler
  • InsulationDouble glazing
  • CH combination boilerNee

Exterior space

  • GardenNo garden
  • AchteromNee

Parking

  • Parking facilitiesParking permits
  • GarageNo garage

Roof

  • Type of roofFlat roof
  • Roof materialBituminous roofing

Other

  • Permanent habitationJa
  • Indoor maintenanceGood to excellent
  • Maintenance outsideGood to excellent
  • Current useWoning
  • Current destinationWoning

Floor plan

On the map

Oude-IJselstraat 18-1

1078 CN, Amsterdam

Under offer
Send a proposal Plan a viewing Maak afspraak via WhatsApp

Similar properties