Skip to content

Burgemeester Cramergracht 139

1064 AK, Amsterdam

Burgemeester Cramergracht 139

1064 AK, Amsterdam

  • 61
  • 1
  • Beschikbaar

Omschrijving

(For English please scroll down)

Stijlvol, instapklaar, met parkeergelegenheid voor de deur én binnen enkele minuten in de binnenstad.
Dit tweekamerappartement combineert comfort, bereikbaarheid (zowel per ov als auto) én groen. Dit biedt een zeldzame combinatie in Amsterdam. De woning ligt op de derde verdieping, is bereikbaar met een lift, beschikt over een zonnig balkon op het westen én een luxe walk-in-closet. Geen onaangename verassingen in de toekomst want de erfpacht is eeuwigdurend afgekocht! Welkom aan de Burgemeester Cramergracht 139!

Praktisch en comfortabel
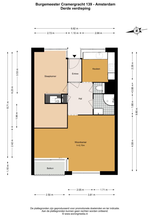
Gelegen op de derde verdieping van een goed onderhouden complex.
Ruime hal, moderne keuken met diverse inbouwapparatuur met een comfortabele slaapkamer met walk-in-closet. De badkamer is voorzien van een douchecabine en wastafel met meubel. Verder is er een separaat toilet. De royale woonkamer met grote raampartijen en schuifpui naar het balkon gelegen op het zonnige westen zorgen voor een open woonkamer met veel lichtinval.
In de kelder bevindt zich een externe en royale berging van ca 5m² die voldoende ruimte biedt voor meerdere fietsen of voertuigen.

Ideale locatie en een uitstekende bereikbaarheid
De ligging is een sterk punt: rustig wonen met veel groen en met alle dagelijkse voorzieningen binnen handbereik en toch snel in de stad dichtbij de diverse horeca zoals Restaurant Overzicht, De Villy, BUITEN | Café & Restaurant, Boes en Bais en Stach x The Social Hub. Binnen enkele minuten fiets je de ring over richting centrum of naar Rembrandtpark, Sloterplas of Erasmuspark voor ontspanning. Boodschappen doe je om de hoek bij het gezellige plein ’40-’45, met een dagelijkse markt en een winkelcentrum met diverse supermarkten zoals AH, Jumbo en Dirk van den Broek.

Het openbaar vervoer is ideaal geregeld, tramlijnen 7, 13 en 17, metro’s 50 en 51 en buslijnen 15 en 18 stoppen allemaal in de buurt. Hierdoor is het centrum en diverse werklocaties uitstekend te bereiken. De op- en afritten van de A10 liggen vlakbij waardoor de reistijd naar bijvoorbeeld Schiphol of diverse andere omliggende steden met de auto zeer snel te bereiken zijn.

Bijzonderheden
• Woonoppervlak 61m2, conform Meetinstructie NEN2580
• Berging van 5m2
• Moderne keuken, walk-in-closet, balkon gelegen op het westen
• Erfpacht is eeuwigdurend afgekocht
• Professioneel beheerde VVE, servicekosten 201,85 euro per maand (incl. voorschot stookkosten)
• Asbest-, ouderdoms- en niet-bewonersclausule van toepassing
• Oplevering in overleg

***

Stylish, move-in ready, with parking right in front of the entree and just a couple of minutes from the city centre.

This two-room apartment combines comfort, accessibility (by both public transport and car), and greenery, a rare combination in Amsterdam. The property is located on the third floor, accessible by elevator, featuring a sunny west-facing balcony, and includes a luxurious walk-in closet. No unpleasant surprises in the future, as the ground lease has been bought off in perpetuity! Welcome to Burgemeester Cramergracht 139!

Practical and comfortable
Located on the third floor of a well-maintained complex.
A spacious hallway, modern kitchen with various built-in appliances, and a comfortable bedroom with a walk-in closet. The bathroom is equipped with a shower cabin and a washbasin with cabinet. There is also a separate toilet. The generous living room with large windows and sliding doors to the sunny west-facing balcony creates an open space with plenty of natural light.
In the basement, there is an external and spacious storage room of approx. 5m², offering ample space for multiple bicycles or vehicles.

Ideal location with excellent accessibility
The location is a strong point: a quiet, green environment with all daily amenities within easy reach, yet still close to the city and various hospitality spots such as Restaurant Overzicht, De Villy, BUITEN | Café & Restaurant, Boes en Bais, and Stach x The Social Hub. Within a couple of minutes you can cycle over the ring road toward the city centre or to Rembrandtpark, Sloterplas, or Erasmuspark for recreation. Groceries can be done around the corner at the lively ’40-’45 square, with a daily market and a shopping centre featuring supermarkets such as AH, Jumbo, and Dirk van den Broek.

Public transport is excellent, with tram lines 7, 13, and 17, metro lines 50 and 51, and bus lines 15 and 18 all stopping nearby. This provides easy access to the city centre and various work locations. The A10 highway is close by, making it quick to reach Schiphol or surrounding cities by car.

Details
• Living area 61m², in accordance with NEN2580 measurement standards
• Storage room of 5m²
• Modern kitchen, walk-in closet, west-facing balcony
• Ground lease bought off in perpetuity
• Professionally managed homeowners’ association (VvE), service costs 201,85 euros per month (including advance payment for heating costs)
• Asbestos, age and non-occupancy clauses apply
• Completion in consultation

Kenmerken

Algemeen

  • StatusBeschikbaar
  • Woonoppervlakte61
  • Aantal slaapkamers1

Bouwvorm

  • Soort objectAppartement
  • Soort appartementGalerijflat
  • Bouwjaar1958
  • BouwvormBestaande bouw
  • LiggingenIn woonwijk, Vrij uitzicht

Indeling

  • Woonoppervlakte61
  • Inhoud205
  • Aantal kamers2
  • Aantal slaapkamers1
  • Aantal badkamers1
  • Aantal woonlagen1

Energie

  • EnergieklasseD
  • VerwarmingBlokverwarming
  • WarmwaterElektrische boiler eigendom
  • IsolatieDubbelglas
  • CombiketelNee

Buitenruimte

  • TuinGeen tuin
  • AchteromNee

Bergruimte

  • Schuur / BergingBox
  • Totaal aantal1

Parkeergelegenheid

  • Parkeer faciliteitenOpenbaar parkeren, Betaald parkeren, Parkeervergunningen
  • GarageGeen garage

Dak

  • Soort dakPlat dak
  • Materiaal dakBitumineuze Dakbedekking

Overig

  • Permanente bewoningJa
  • Onderhoud binnenGoed
  • Onderhoud buitenGoed
  • Huidig gebruikWoonruimte
  • Huidige bestemmingWoonruimte

Plattegronden

Plattegrond
Plattegrond 3
Plattegrond 2
Plattegrond 5
Plattegrond 4

Op de kaart

De brochure

Alles te weten komen over deze woning? Download dan de gedetailleerde brochure.

Burgemeester Cramergracht 139

1064 AK, Amsterdam

€ 365.000,- k.k.

Contact Plan een bezichtiging Maak afspraak via WhatsApp

Vergelijkbare woningen