Skip to content

Warmondstraat 199-2

1058 KX, Amsterdam

Warmondstraat 199-2

1058 KX, Amsterdam

  • 62
  • 1
  • Gestoffeerd
  • Onder bod
  • 1 maart 2026

Omschrijving

** CALLS WILL NOT BE SCHEDULED, PLEASE RESPOND VIA THE ADVERTISEMENT AND SCHEDULE YOUR APPOINTMENT DIRECTLY**
** NOT AVAILABLE FOR SHARING **

In the South of Amsterdam next to Hoofddorpplein we offer this unfurnished bright apartment in a charming and quiet street.
Within a 10 minutes walk you are in the popular Vondelpark and also close to station Lelylaan. There are lots of shops, restaurants and take away’s around the corner.

Situated on the 2nd floor of a typical 30’s property you’ll find this lovely 1+ bedroom apartment with loads of daylight due to its many windows at the front. This lovely apartment is equipped with laminate floors, a fully equipped kitchen and a balcony at the back facing East.

Layout:
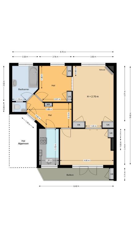
Communal entrance, stairs to the second floor, hallway with toilet and access to all areas, bright living with many windows and side room,(perfect for dining area/ study area), separate kitchen equipped with: dishwasher, gas stove, fridge and oven, bedroom situated at the back side with access to the large balcony facing East, basic bathroom with bath, sink and connection for washing machine, the apartment has lots of built-in cupboards/storage space.

Area:
The Warmondstraat is characterized as a quiet and green street in Amsterdam South. The apartment is located in the first part of Warmondstraat, close to Hoofddorpplein. All amenities are within walking distance, such as supermarkets, shops and specialty stores. There is also no shortage of cozy restaurants in this nice neighborhood: Stadscafé van Mechelen, Norma, Bar Bonnie, Ron Gastrobar and Blauw restaurant are among the many advantages of living in this neighborhood.
Various primary and secondary schools as well as childcare are nearby. For sports and recreation you can visit the nearby Rembrandtpark or the Vondelpark. The accessibility is excellent: there is ample public transport in the vicinity. Parking is no problem; there is always room in front of the door. The A10 ring road (exit 106) is just one minute away and Schiphol is ten minutes away by car.
In short: comfortable living with all amenities within reach!

DETAILS:
– Approx. 62 m2 (not measured according NEN-2580 norm)
– 1+ bedrooms
– Unfurnished
– Bath
– Very energy sufficient with double glazing resulting in an energy rating A
– Located in a quiet street, but close to all shops, tram, restaurants, Vondelpark
– Balcony facing east
– Parking by Municipality permit system

RENTAL CONDITIONS:
– Rental price € 1.995,- excl utilities per month (incl € 75,- service costs)
– Available by March 1st for a minimum of 12 months lease A
– No smoking, no pets allowed
– 2 months deposit
– Not available for sharing
– Subject to landlord approval
– Income requirement: at least 3.7 times the gross monthly rent

**This Property is listed by JLG Real Estate a MVA Certified Expat Broker**

DISCLAIMER
This information has been compiled by us with the necessary care. On our part, however, no liability is accepted for any incompleteness, inaccuracy or otherwise, or its consequences. All sizes and dimensions are indicative.

Kenmerken

Algemeen

  • StatusOnder bod
  • Woonoppervlakte62
  • Aantal slaapkamers1

Bouwvorm

  • Soort objectAppartement
  • Soort appartementBovenwoning
  • Bouwjaar1929
  • BouwvormBestaande bouw
  • LiggingenAan rustige weg, In woonwijk

Indeling

  • Woonoppervlakte62
  • Inhoud171
  • Aantal kamers3
  • Aantal slaapkamers1
  • Aantal badkamers1
  • Aantal woonlagen1

Energie

  • EnergieklasseA
  • VerwarmingCV ketel
  • WarmwaterCV ketel
  • IsolatieGedeeltelijk dubbelglas
  • CombiketelJa
  • BrandstofGas
  • EigendomEigendom

Buitenruimte

  • TuinGeen tuin
  • AchteromNee

Parkeergelegenheid

  • Parkeer faciliteitenBetaald parkeren, Parkeervergunningen
  • GarageGeen garage

Overig

  • Permanente bewoningJa
  • Onderhoud binnenGoed
  • Onderhoud buitenGoed
  • Huidig gebruikWoonruimte
  • Huidige bestemmingWoonruimte

Plattegrond

Plattegrond

Op de kaart

Over Amsterdam Zuid

Amsterdam Zuid is een van de meest gewilde buurten om te wonen – het zit boordevol cultuur en culinaire hoogstandjes, indrukwekkende herenhuizen, chique boetieks en een aantal van de beste musea ter wereld.